Search Property

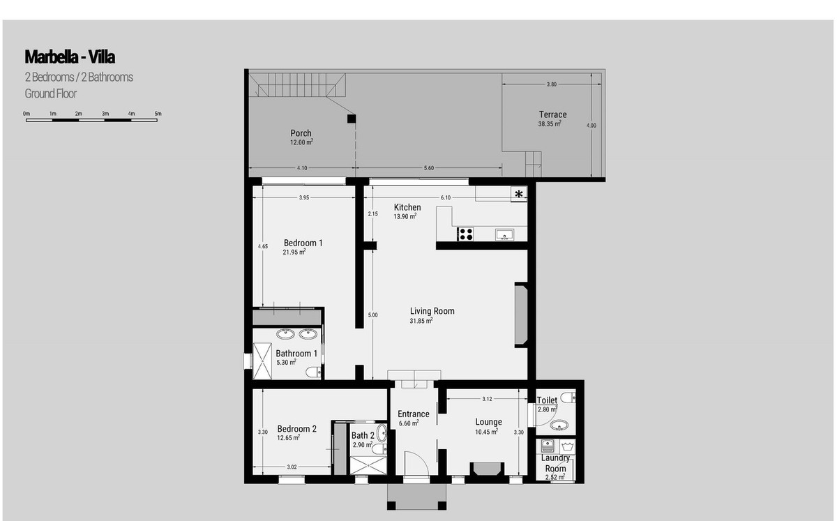
Townhouse in The Golden Mile

Marbella, Málaga