Detached Villa in Las Chapas
Marbella, Málaga
3,000,000€
Summary
- Reference: R4183114
- Town: Marbella
- Location: Las Chapas
- Property Type: Detached Villa
- Area: 190 m2
- Garden: 973 m2
- Beds: 4
- Baths: 3
- Garage: Yes
- Original price: 2,500,000€
Property Description
Unique opportunity to purchase a beach side Villa in East Marbella.
The property is currently under construction and will be finished in October 2025.
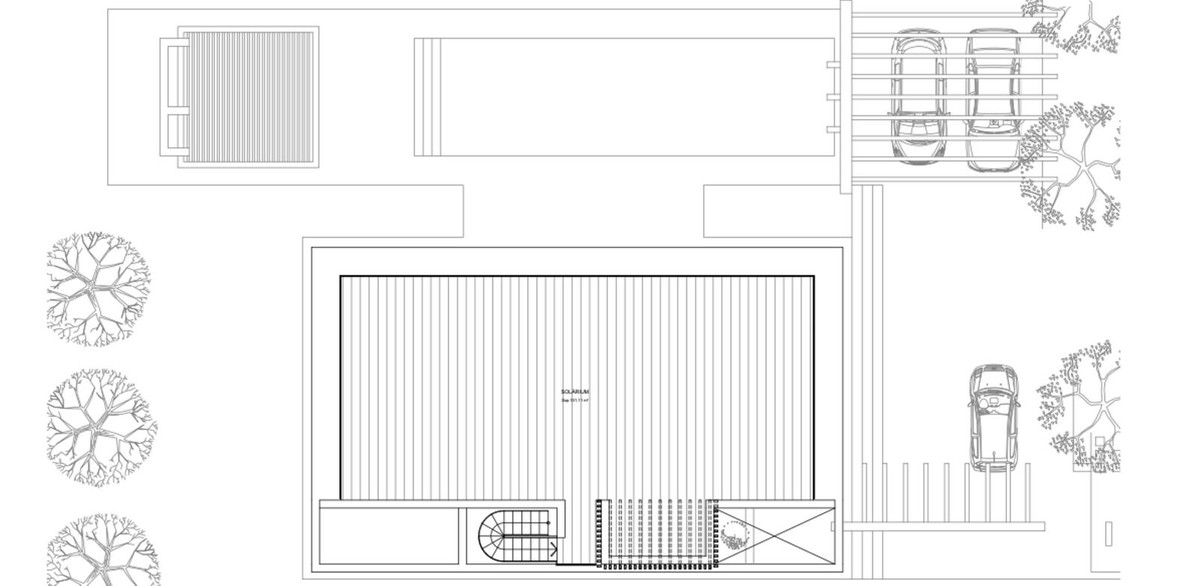
Amazing sea and mountain views from the roof top solarium.
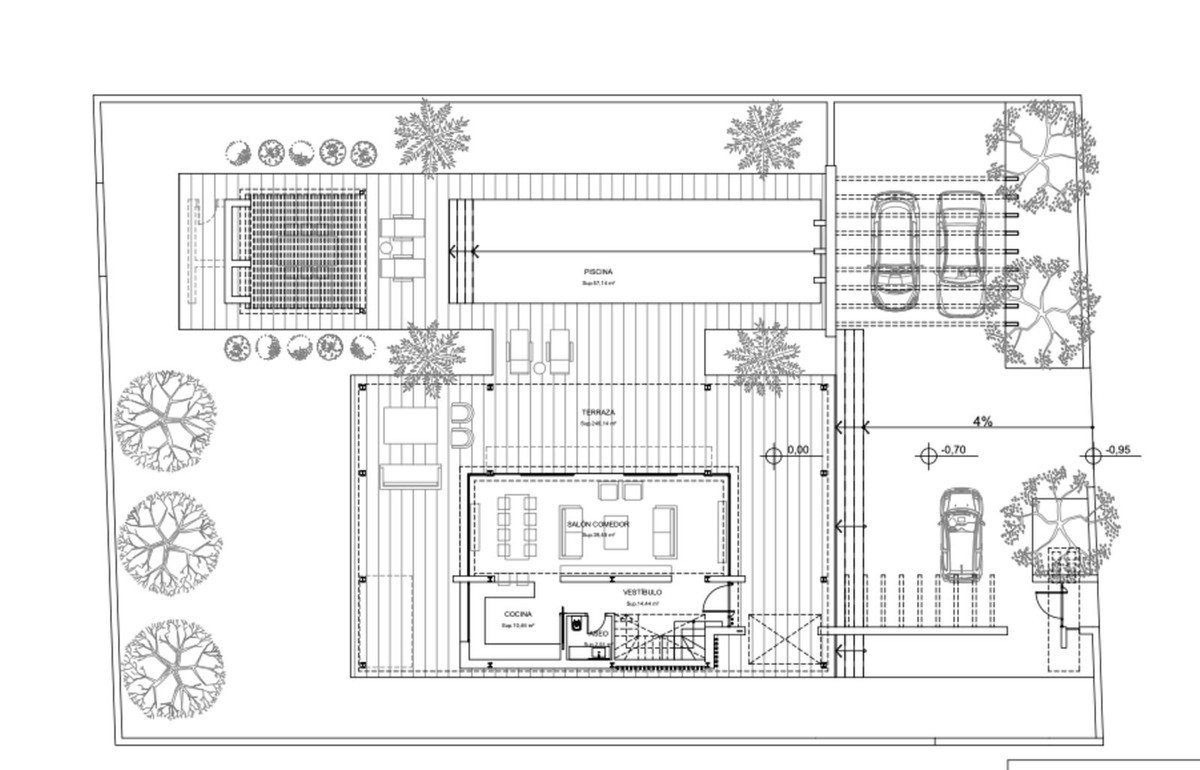
Lovely flat plot of nearly 1000 m2 with sun all day long.
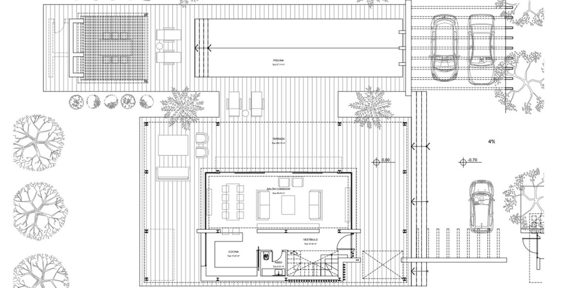
The villa is distributed over 2 levels as follows:
As you enter the villa you have a spacious lounge / dining area that leads on to the private covered terrace and pool area.
Open plan kitchen, separate laundry room and 1 toilet.
On the second level there are 4 bedrooms and 3 bathrooms.
All bedrooms have direct access to the terrace.
Features
- Setting: Beachside, Close To Golf, Close To Shops, Close To Sea, Close To Schools
- Condition: Excellent
- Pool: Private
- Views: Sea, Mountain
- Features: Fitted Wardrobes, Private Terrace, Solarium
- Garden: Private
- Parking: Covered, Private
Request more information
Elvira Meraki
With more than 20 years of expertise, we're your key to finding your perfect home, more than just a house, it's a partnership for life, guiding you every step of the way.
- Spain: +34 677 14 99 08
- Denmark: +45 31 77 71 72
- Email: hola@elvirameraki.com